Tijdbeeld
2 afbeeldingen.

Waardering

samenvatting van de bouwgeschiedenis
Aalten is gelegen op het Oost-Nederlands plateau, een verhoging in het landschap waar zich al vroeg mensen vestigden. Het dorp ligt grotendeels tegen een heuvelhelling van de Aalter es, hierdoor is binnen de dorpskern sprake van hoogteverschillen. In het lager gelegen deel stroomt de Aaltense Boven-Slinge. Op de grens van de Aaltense es en een lager gelegen veen- en heide gebied richting Bredevoort ligt een belangrijke scholtenboerderij, de Ahof. De Ahof was voor een lange periode het decor van de jaarlijkse hofdagen, een dag waarop de pacht betaald werd en recht werd gesproken. Deze dag vond haar oorsprong in de middeleeuwen.
De bewoners van de Ahof bekleedden als scholtenboer een hoge maatschappelijke positie. Zij hielden namens de pandheer toezicht op de bezittingen en de heerlijke diensten, inden de jaarlijkse opbrengsten en waren belast met de rechtspraak over hofgoederen en haar bewoners. Zij traden tevens als vertrouwenspersoon van de drost van Bredevoort op.
De hoofdopzet van de Ahof wijkt wat betreft zowel de constructie als de indeling af van het standaard beeld van een hallehuisboerderij. Het huis moest de status van de hoofdbewoner als scholte, bestuurder en rechtsdienaar benadrukken en vertoont opvallende overeenkomsten met de richtershuizen zoals die uit andere plaatsen in de Achterhoek bekend zijn.

Het huidige gebouw werd waarschijnlijk in de zeventiende eeuw gebouwd. Zowel het metselverband als de nummering van de eikenhouten kapconstructie wijzen in de richting van een datering in die periode.  Op het platteland en in de periferie van ons land worden innovaties en vernieuwingen echter met enige vertraging ingevoerd en blijven oude tradities vaak langer in gebruik. Deze datering is daarom indicatief en met een ruime marge naar boven.
De meeste vensters van de Ahof werden in de achttiende eeuw vervangen door moderne schuifvensters. In deze periode werd aan de noordzijde van het gebouw een tweede woning afgescheiden voor de inwonende ouders van de scholte.
De Ahof bleef in de negentiende- en twintigste eeuw door vererving eigendom van de familie Arentzen en later Prins. In het laatste kwart van de negentiende eeuw vond er een vrij omvangrijke verbouwing plaats, waarbij men onder meer de schuiframen in de buitengevels vernieuwde. Aan de achterzijde werd een schuur aangebouwd.

De Ahof werd in 1985-'86 in opdracht van de gemeente Aalten gerestaureerd en herbestemd tot participatiewerkplek met kantoor. Een jaar later werd aan deze accommodatie een kinderboerderij toegevoegd. De restauratie zorgde voor behoud van het historisch casco en een deel van de indeling, maar omvatte ook de sloop van de aangebouwde veeschuur en het moderniseren van een groot deel van de interieurafwerking.

2 afbeeldingen.

waardering
De waardestelling is opgesteld volgens de Uitvoeringsrichtlijn Bouwhistorisch onderzoek met waardestelling URL 2007  van de Stichting Erkende Restauratiekwaliteit Monumentenzorg (ERM). De waardestelling vindt plaats op twee niveaus: het gebouwde object in relatie tot zijn bredere context en de betekenis van de verschillende onderdelen in relatie tot het object zelf. Het eerste betreffen de ‘contextuele waarden’ en het tweede de ‘intrinsieke waarden’. De waardestelling bestaat uit tekst en tekeningen die complementair en onlosmakelijk met elkaar verbonden zijn. De intrinsieke waardestelling vindt zijn neerslag in de waarderingsplattegronden.

contextuele waarden
De contextuele waarden zijn volgens de Uitvoeringsrichtlijn Bouwhistorisch onderzoek onderverdeeld in een aantal deelwaardestellingen: historische waarden, ruimtelijke waarden, architectuurhistorische waarden, bouwhistorische waarden, kunsthistorische waarden, gebruikswaarden / functiespecifieke waarden en herinneringswaarden. Elk van deze deelwaarden wordt getoetst aan de hand van de criteria gaafheid en zeldzaamheid.

De bouwgeschiedenis en de bouwchronologie worden ook gepresenteerd op faseringsplattegronden. Deze tekeningen zijn slechts voor een beperkt deel gebaseerd op absolute dateringen, zij geven vooral de relatieve chronologie weer zoals die afgeleid kan worden uit typologische en bouwhistorische kenmerken en de restauratiegeschiedenis. Eea in relatie met de gebruiksgeschiedenis voor zover bekend. Het is daarom onvermijdelijk dat binnen de tijdlijn onderdelen onbenoemd moeten blijven of met een onzekerheidsfactor gedateerd moeten worden. 
Genoemde plattegronden zijn ook op hogere resolutie te downloaden via de knop ‘Downloads’.

historische waarden, gebruikswaarden en herinneringswaarden
De Ahof in Aalten is van algemeen historisch belang vanwege het historisch gebruik van het gebouw als scholtenboerderij. Het gebouw herinnert daarbij aan de welgestelde en invloedrijke families Grevinck, ten Dam en Arentsen, die hier in de zeventiende, achttiende- en negentiende eeuw woonden. Veranderingen en verbouwingen in de tweede helft van de negentiende eeuw zijn direct terug te voeren op vererving en een huwelijk binnen de familie Arentsen/Prins in 1876 en 1889. De voormalige dubbele bewoning van het huis is nog herkenbaar aan de indeling en de twee voordeuren (met achtergelegen gangen). 

ruimtelijke waarden
De Ahof is van ruimtelijk belang vanwege de ligging op de grens van de Aaltense es en een lager gelegen veen- en heidegebied. Dit verwijst in bredere context naar de historische ontwikkeling van bewoning op het Oost-Nederlands Plateau in de omgeving van Aalten. 
De scholtenboerderij is tevens van belang vanwege de situering op een ruim perceel aan de Polstraat, dat aan de zuidoostzijde begrensd wordt door de Boven-Slinge. De beek maakte van oudsher deel uit van de omgrachting van het terrein. De gracht is later voor een groot deel gedempt, maar het tracé is nog herkenbaar in de landschappelijke structuur. 
De Ahof is verder van belang vanwege de ondiepe siertuin aan de voorzijde in combinatie met de hoog opgaande eikenbomen, als verwijzing naar de negentiende-eeuwse terreininrichting. 

architectuurhistorische waarden
De Ahof is van architectuurhistorisch belang als relatief gaaf bewaard gebleven voorbeeld van een waarschijnlijk zeventiende-eeuwse scholtenboerderij, waarbij de gevelindeling en toegepaste (gerestaureerde) venstertypen het resultaat zijn van modernisering in de achttiende- en negentiende eeuw. De Ahof kan gekarakteriseerd worden als een typologisch zeldzame variant van een scholtenboerderij, die wat betreft constructie, indeling en verschijningsvorm niet aansluit bij de traditionele hallehuisboerderijen, maar meer overeenkomsten heeft met Achterhoekse richtershuizen uit de zeventiende eeuw. 
De scholtenboerderij is verder van architectuurhistorisch belang vanwege de bewaard gebleven historische indeling, met representatieve entrees en vertrekken aan de voorzijde, opkamers tegen beide zijgevels en de keuken en het bedrijfsgedeelte aan de achterzijde. Van belang is tevens de bijbehorende, historische interieurafwerking, bestaande uit enkele vloeren, schouwen, paneeldeuren en trapjes. Met name het laat negentiende-eeuwse interieur van de keuken bleef relatief gaaf bewaard. De bewaard gebleven indeling herinnert in combinatie met de historische interieuronderdelen op tastbare wijze aan de status en maatschappelijke positie van de bewoners en het daarbij behorende wooncomfort. 

bouwhistorische waarden
De Ahof is van bouwhistorisch belang vanwege de zeer gaaf bewaarde hoofddraagconstructie uit de zeventiende eeuw, bestaande uit kapconstructie, zolderbalklaag/gebinten en gevels. De bouwhistorische waarde van de oorspronkelijke gevels is daarbij wel aangetast door de ingrijpende herstelwerkzaamheden van de restauratie in 1985-’86. Hierbij werden veel belangrijke bouwsporen uitgewist. De eikenhouten kromstijlgebinten zijn aanvullend van belang vanwege de zeer zeldzame, originele toepassing van zowel gesneden als gehakte telmerken. 
De kozijnen met sporen van vaste kalven, het rookkanaal en de stijl op zolder met achttiende-eeuwse inscripties en de jaartalsteen boven de nendeuren zijn van bouwhistorisch belang vanwege de afleesbaarheid van de bouwgeschiedenis. 

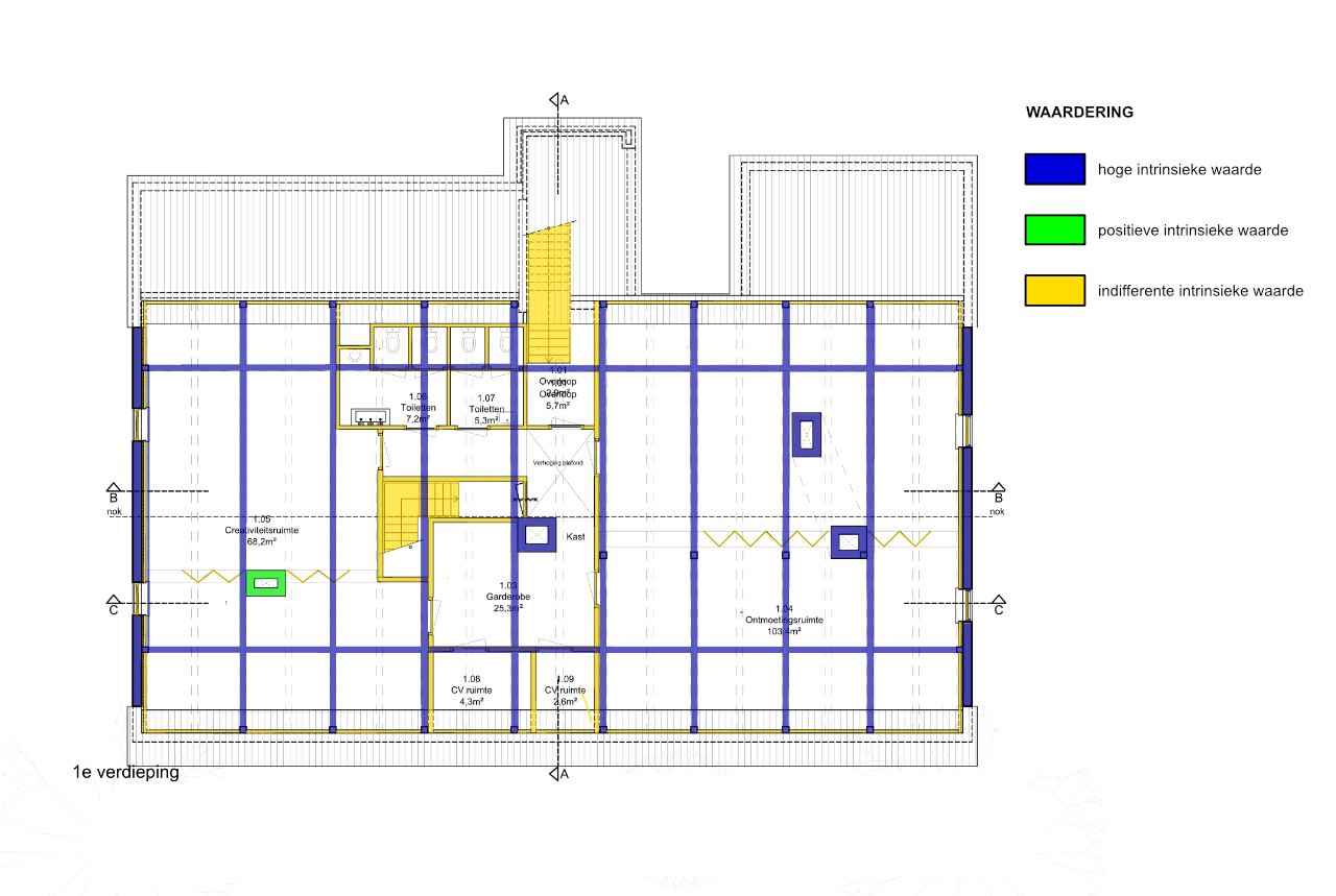
intrinsieke waarden
Bij de intrinsieke waarden worden de fysieke elementen in onderlinge samenhang gewaardeerd en getoetst op het belang van het onderdeel binnen het object. Dat houdt in dat ouderdom niet per se hoeft te leiden tot een hoge waardering. Ook kunnen elementen uit dezelfde bouwfase van verschillende waarde zijn op basis van verschillen in gaafheid of de betekenis binnen de ruimtelijke structuur. Deze onderdelen kunnen een materiële waarde hebben, maar ook een conceptuele waarde, vanwege het achterliggende ontwerpidee of de functionele betekenis binnen het object. Op de waarderingsplattegrond zijn de intrinsieke waarden van de ruimtelijke structuur in drie gradaties of categorieën in kleur weergegeven: 

Hoge intrinsieke waarde (blauw): van groot belang voor het karakter, de structuur of de betekenis van het object. 

Positieve intrinsieke waarde (groen): van ondersteunend belang voor het karakter, de structuur of de betekenis van het object. 

Indifferente intrinsieke waarde (geel): van weinig of geen belang voor het karakter, de structuur of de betekenis van het object. 

De intrinsieke waarden van historische plafonds is met een kruis aangeduid. De in lichtere kleur ingevulde vlakken verwijzen naar de historische vloerafwerking.